26
$2,700 Rent
Listed 2 hours ago
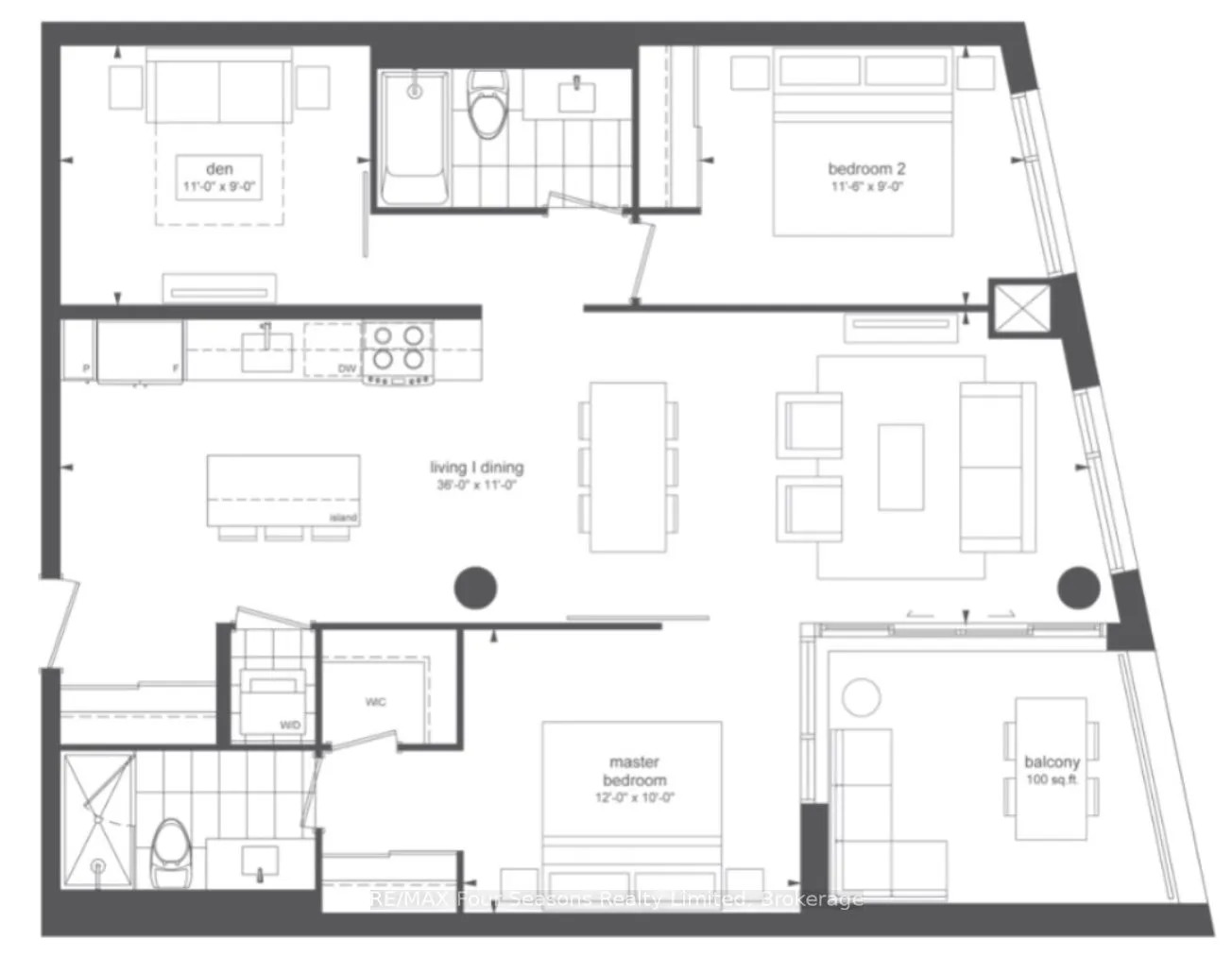
31 Huron Street, #226
· 2
· 2
· 1
· 1000-1199
Listing History
Buy/Sell/Terminated/Expired listing history for 31 Huron Street, #226
Key Facts
Key facts for 31 Huron Street, #226
Property Type
Condo, Apartment
Parking
1 garage, 1 parking
MLS #
S12449321
Size
1000-1199 sqft
Basement
None
Listed on
2025-10-06
Lot size
-
Tax
-
Days on Market
2
Approximate Age
-
Maintenance Fee
- Common Elements, Par...
Description
Welcome to Harbour House a BRAND NEW 1,175 sq. ft. 2-Bedroom PLUS DEN, offering stunning water views and contemporary luxury living just steps from scenic trails, the waterfront, and downtown Collingwood. This elegant residence showcases premium finishes throughout, including sleek quartz countertop...s, luxurious stone bathroom vanities, upgraded tile work, and top-of-the-line stainless steel appliances. Residents will appreciate the convenience of a designated underground parking space and an exclusive storage locker, as well as access to exceptional building amenities such as a fully equipped fitness center, stylish guest suites, a pet spa, and a separate exterior gear/equipment room. With its prime location and sophisticated design, Harbour House offers a truly elevated lifestyle. A one-year lease is required, along with a rental application, credit check, employment letter, references, and standard lease agreement.
Similar Properties (No results)
Courtesy of: RE/MAX Four Seasons Realty Limited